
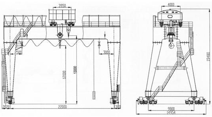
Lou Lift Crane, Double Crane Gantry Crane 30 Tòn
Double gwo bout bwa galvanik lancho ak Kwòk aplike deyò depo oswa tren sou kote pou fè komen leve ak deplwaye travay. Sa a jan de teknik ki konpoze de pon, pye sipòte, teknik vwayaje ògàn, Trolley ak vibran leve fò, ekipman elektrik ak sistèm kontwòl. Kòm konsepsyon devwa lou li yo, li ka lajman itilize nan tout kalite endistriyèl jaden.
lou leve teknik, double gwo bout bwa galvanik teknik 30 tòn
Double gwo bout bwa galvanik lancho ak Kwòk aplike deyò depo oswa tren sou kote pou fè komen leve ak deplwaye travay. Sa a jan de teknik ki konpoze de pon, pye sipòte, teknik vwayaje ògàn, Trolley ak vibran leve fò, ekipman elektrik ak sistèm kontwòl. Kòm konsepsyon devwa lou li yo, li ka lajman itilize nan tout kalite endistriyèl jaden.